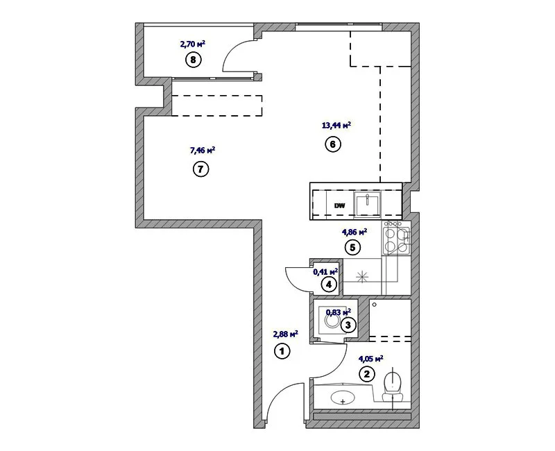
Studio apartment 34 sq. m.

Space replanning. Example of the redevelopment project and prompt decision. Created in 2012

Previous
Previous

Tranquil classics, 43 sq. m

Next
Next

1 bedroom apartment 33 sq. m.